Новости (28 мая 2021)

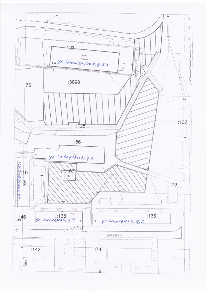
Управление Ленинского административного округа г. Мурманска просит владельцев зеленых зон, расположенных на территории района Росляково города Мурманска в районе домов 2, 4 по ул. Школьной, 4, 6 по улице Заводской и 5а по улице Приморской, в течение месяца (со дня опубликования объявления) предоставить правоустанавливающие документы на данные объекты и занимаемые земельные участки в управление Ленинского административного округа города Мурманска по адресу: район Росляково, ул. Заводская, д. 3, контактные телефоны: 47-05-16, 47-16-48.
При отсутствии владельца, управлением округа будет решаться вопрос о признании объекта бесхозяйным имуществом и включении его в реестр муниципального имущества города Мурманска для закрепления на текущее содержание за специализированным предприятием
































































